Einfamilienhaus O

Neubau 2024

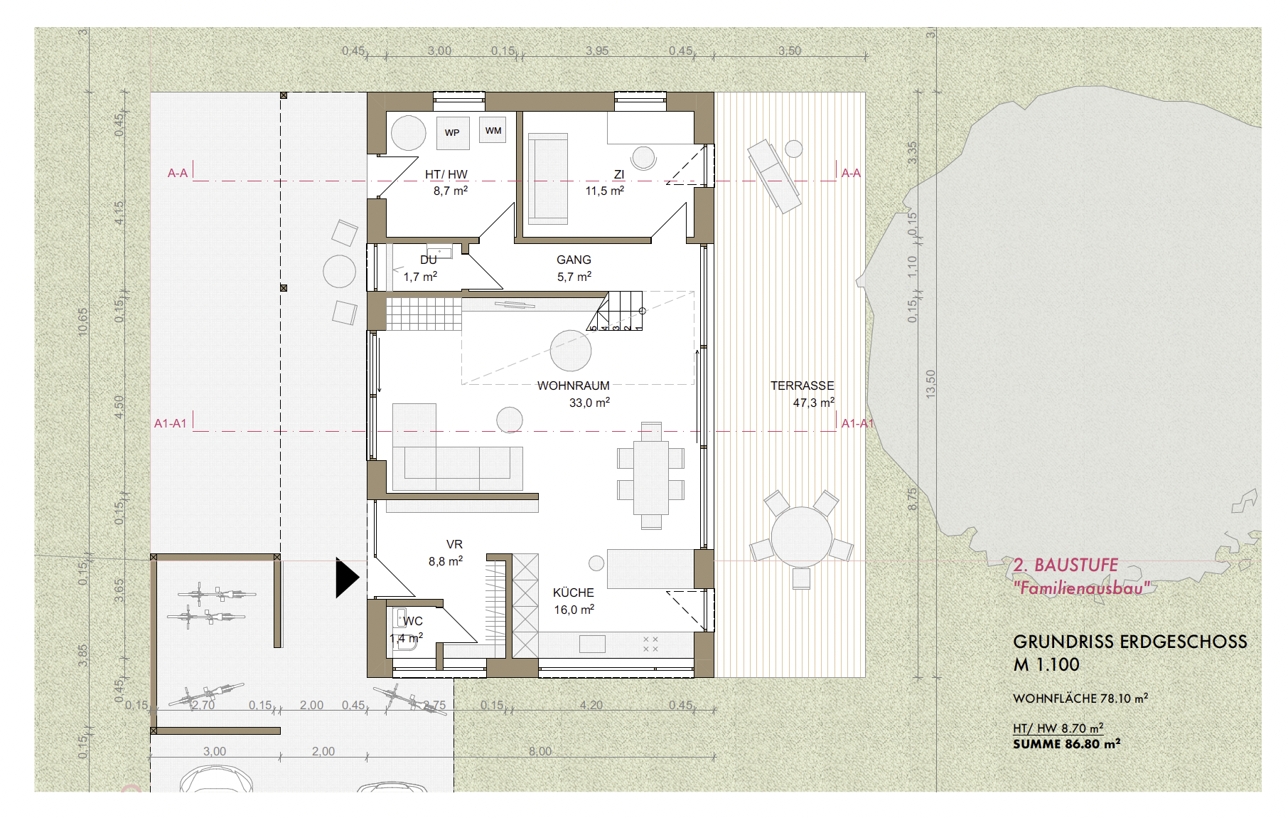
Das Hauptaugenmerk dieses Einfamilienhauses war wieder die konsequente ökologische Bauweise: Holzriegel mit Strohdämmung, innen Holzmassiv mit Lehmputz. Das Raumkonzept auch hier beweglich und flexibel, Räume können jederzeit mittels Holzwänden abgetrennt und wieder geöffnet werden - je nach den Bedürfnissen und der Anzahl der Bewohnerinnen. Niemand soll schließlich zu zweit mit 3 leeren Zimmern enden. Lage des Bauplatzes herrlich und privilegiert am Ortsrand zwischen Wiesen, Feldern und einer alten Kellergasse - das Haus lässt die Landschaft durchfließen und bietet gleichzeitig einen Windschutz für den Garten im Osten.

Materialien und Farben: ökologische Holzriegelbauweise mit Strohdämmung, Lehmputz, Holzfenster . Erdfarben in Braun und Grüntönen